Detale do rysunków technicznych
429,00 zł
Opis
Przeszło 19 lat wiedzy i doświadczenia w prowadzeniu projektów dla naszych klientów, dało mi ogromne zaplecze, którym mogę podzielić się zarówno z projektantami, którzy zaczynają swoją profesjonalną działalność projektową, ale również z osobami doświadczonymi w branży projektowej.
Wszystko czego nauczyłam się przez ponad 20 lat pracy w zawodzie projektanta wnętrz, wyniosłam sama z mojej praktyki, uczyłam się na własnych błędach, rozmawiałam z wykonawcami, z osobami, które pracowały na budowie, czy przy produkcji. Wszystko po to aby poznać detale, technologie i aspekty techniczne, niezbędne w pracy projektowej. Studia kierunkowe nie są w stanie nas przygotować do pracy zawodowej tak, jak doświadczenie zdobywane w praktyce.
Wychodząc na przeciw prośbą i oczekiwaniom projektantów wnętrz, którzy zakupili pakiet z wzorami dokumentacji technicznej, został stworzony nowy produkt detale do rysunków technicznej w formacie DWG. Jest to zupełnie inny produkt, który bazuje na dokumentacji technicznej w formacie PDF, z fragmentami różnych projektów z okresu ostatnich kilku lat działalności pracowni, które pokazują jak w praktyczny sposób można użyć detali DWG zawartych w pakiecie. Było bardzo dużo pytań o to, czy jest możliwość udostępnienia tych elementów w formacie DWG gotowych do użycia w dokumentacji i bardzo się cieszę, że mogę przekazać je do Waszej dyspozycji.
Zanim zdecydujesz się na zakup przeczytaj cały opis pakietu produktowego, a w szczególności część z uwagami.
Co możecie zyskać dzięki temu pakietowi:
- wzbogacicie swoją dokumentacje techniczną o nowe elementy
- podniesiecie jakość swoich usług, dzięki nowym umiejętnością w zakresie łączenia materiałów z technologią wykonania
- zaoszczędzicie czas na wizytach na nadzorach, rozmowach telefoniczny z wykonawcami i wyjaśnianiu punkt po punkcie niejasności, których mnóstwo się pojawia na budowie, kiedy rysunki nie są czytelne i szczegółowe
- wzbogacicie swoją wiedzę o nowe rozwiązania i detale techniczne, które może do tej pory nie były Wam znane, albo nie chcieliście ich stosować ze względu na zbytnią złożoność
Co zawiera pakiet:
- 3 katalogi z detalami w formacie DWG z podziałem na kategorie – Detale budowlane (ogólne i łazienki), Detale mebli (z podziałem na pomieszczenia) i Detale pozostałe (drzwi, schody itp.)
Razem ponad 200 detali w formacie DWG i 139 rysunków w formacie PDF
- 3 katalogi z dokumentacją techniczną w formacie PDF z numeracją odpowiadającą nr poszczególnych detali, jako uzupełnienie do plików DWG z detalami, aby można było na konkretnych przykładach zapoznać się ze sposobem ich użycia w praktyce
- Wizualizacje i widoki 3D jako uzupełnienie do plików DWG i PDF, aby łatwiej było zapoznać się z układem, materiałami, rozwiązaniami, detalami w 3d zanim przejdziecie do analizowania dokumentacji
Lista detali
Detale budowlane:
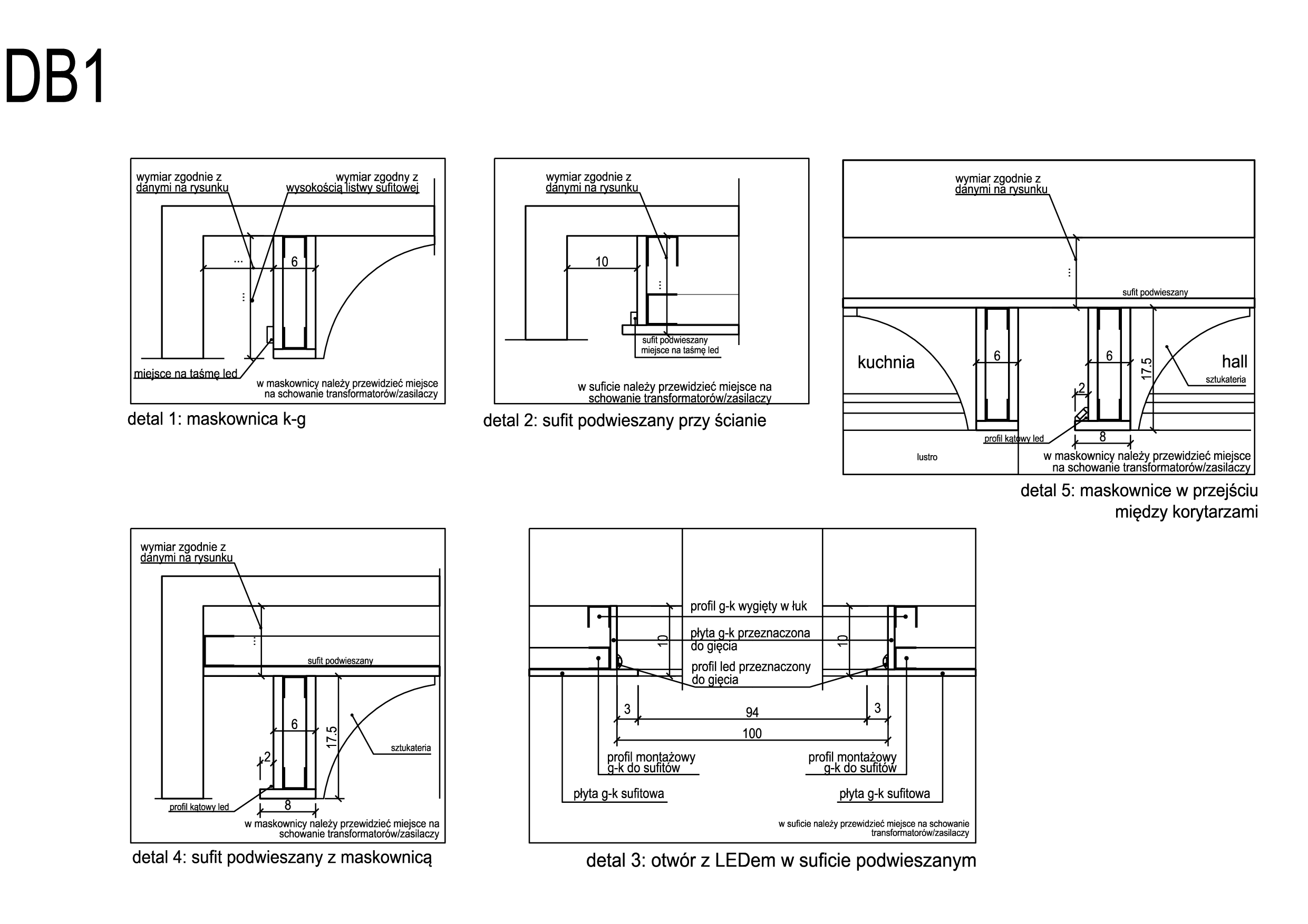
- maskownica karnisza i taśmy led z g-k
- sufit podwieszany z miejscem na taśmę led
- maskownice pod montaż sztukaterii z miejscem na taśmę led
- sufit podwieszany dodatkowo z mocowaniem maskownicy na taśmę led
- sufit podwieszany z wycięciem otworu dekoracyjnego z taśmą led
- łączenie płytki gres i podłogi drewnianej listwą dekoracyjną
- zabudowa ościeżnicy ukrytej
- łączenie płytek z narożnikiem 45 stopni
- cokół wanny
- zabudowa geberitu płytą mdf
- zabudowa geberitu płytą laminowaną oraz szafka nad geberitem
- mocowanie szyby prysznicowej w profilu między płytkami
- łączenie lustra z opaską drzwiową
- lustro zlicowane z płytką gres
- listwa przypodłogowa wkuwana w ścianę w łazience
- taśma led w zabudowie półki pod prysznicem
- łączenie płytek przy szybie prysznicowej
- zlicowanie płyty mdf z płytkami gres
- łączenie płytek przy półce stalowej w łazience – wnęka prysznicowa
- łączenie płytki ze ścianą malowaną
- listwa dekoracyjna między płytkami na ścianie w prysznicu
- szyba prysznicowa mocowana w profilu na narożniku zabudowy
- mocowanie szyby prysznicowej w profilu
- zabudowa g-k z niszą na kosmetyki w prysznicu
- wykończenie półki przy wannie i zabudowy wanny
- zabudowa geberitu z łączeniem płytek na 45 stopni wraz z montażem szafki nad geberitem
- montaż taśmy led pod cokołem wanny
- wykończenie narożnika płytki przy łączeniu ze ścianą listwa dekoracyjną
- połączenie zabudowy wanny z zabudową geberitu
- zabudowa g-k pod lustro na dystansie pod montaż taśmy led za lustrem
- wykończenie otworu drzwiowego ościeżnicy ukrytej płytkami gres
- listwa dekoracyjna montowana między płytkami gres
Detale mebli – w pliku znajduje się dużo różnych rodzajów rozwiązań dotyczących opisanych poniżej detali:
- detale do uchwytów meblowych wykonanych z mdf i drewna
- detal drzwi lustrzanych
- montaż listwy led w korpusach mebli
- detal rozwiązania montażu zawiasu przy szufladach w szafie
- detal wysuwanej półki w szafie
- detal listwy cokołowej
- detal frezowania frontów dekoracyjnych
- detal szafki z siedziskiem
- detal pionowych frezów we froncie z mdf
- detal dna szafki podwieszanej z taśmą led
- detal dna szafki podwieszanej z systemem otwierania
- detal konstrukcji stalowej do półek z mdf
- detal mocowania dekoracyjnej listwy frezowanej na frontach z mdf
- detal mocowania gniazda elektrycznego w meblu
- detal listwy korytkowej do otwierania frontów meblowych
- detal konstrukcji skrzyni łóżka z płyty mdf
- detal mocowania pochwytu drabiny na szynie
- detal mocowania listwy led między elementami tapicerowanymi zagłówka
- detal łączenia tapicerki zagłówka
- detal wysuwanego blatu w zabudowie meblowej sypialni
- detal mocowania listwy led za zagłówkiem łóżka
- detal frezowania dekoracyjnych paneli ściennych
- detal mocowania lameli drewnianych i taśmy led
- detal tapicerki z dekoracyjną ramą z płyty mdf
Detale pozostałe:
- detale przekrojów przez konstrukcje drzwi w stylu klasycznym w połączeniu ze szprosami i szkłem fazowanym
- detal konstrukcji obrotowej ścianki z tv
- detal podświetlenia stopni schodowych z listwą led
- detal montażu balustrad i pochwytów schodów z listwą led
UWAGA:
- Dokumentacja PDF nie jest odpowiednikiem produktu WZORY DOKUMENTACJI TECHNICZNEJ zawiera inne przykłady rysunków, w okrojonej wersji, niezbędnej do przedstawienia detalu w praktycznym użyciu w dokumentacji
- Dokumentacja techniczna w PDF jest uzupełnieniem detali DWG i zawiera tylko te rysunki, które pokazują praktyczne wykorzystanie danego detalu na przykładzie
- Dokumentacja PDF może zawierać inne rodzaje przykładowych ramek, opisów, czcionek, ponieważ była tworzona na przestrzeni wielu lat działalności biura, kiedy te elementy ulegały zmianie
- Plik DWG był tworzony z pliku źródłowego w formacie DGN (Bentley Microstation) dlatego wygląd detali w pliku DWG i PDF różni się pod kątem graficznym. Opisy detali oraz wymiary są edytowalne można je dostosować do własnych potrzeb
- Wizualizacje i widoki 3d mogła różnić się od ostatecznego wyglądu w dokumentacji technicznej PDF i detalu DWG ponieważ są one jedynie koncepcją aranżacyjną, załączoną do pakietu w celu przybliżenia formy elementów widocznych na rysunkach technicznych
- Pliki DWG są przeznaczone do programów typu cad, nie są kompatybilne z programami graficznymi 3d (sketchup)
Dostawa produktów elektronicznych jest bezpłatna. Po opłaceniu zamówienia otrzymasz e-mail z linkiem do pobrania produktu. Pamiętaj, żeby właściwie i dokładnie wypełnić dane do zamówienia i wpisać adres e-mail. W razie pytań pomoc znajdziesz pod adresem kontakt@edukacjaprojektanta.pl
Dodatkowym bonusem jest dostęp do zamkniętej grupy na fb tylko dla osób które wykupiły wzory dokumentacji technicznej, detale do rysunków technicznych lub produkty w pakietach. Aby uzyskać dostęp należy na FB dołączyć do grupy https://www.facebook.com/groups/edukacjaprojektanta i podać dane dotyczące zamówienia (nr zamówienia lub nr faktury), oraz adres mailowy. Bez możliwości weryfikacji danych osobowych, nie będzie możliwości dołączenia do grupy.
Uwaga: Przykład dokumentacji przedstawiony na zdjęciach w ofercie, stanowi części pakietu i jest przykładem standardu dokumentacji, jaki wykonujemy w naszym biurze. Tego typu rysunki są zawarte w pakiecie z detalami. Zamieszczony widok z detalami jest realnym przedstawienie elementów składających się na plik DWG w pakiecie. Mam nadzieję, że przedstawione zdjęcia, umożliwią podjęcie decyzji w oparciu o wartość merytoryczną dokumentacji zawartej w pakiecie.











Opinie
Na razie nie ma opinii o produkcie.